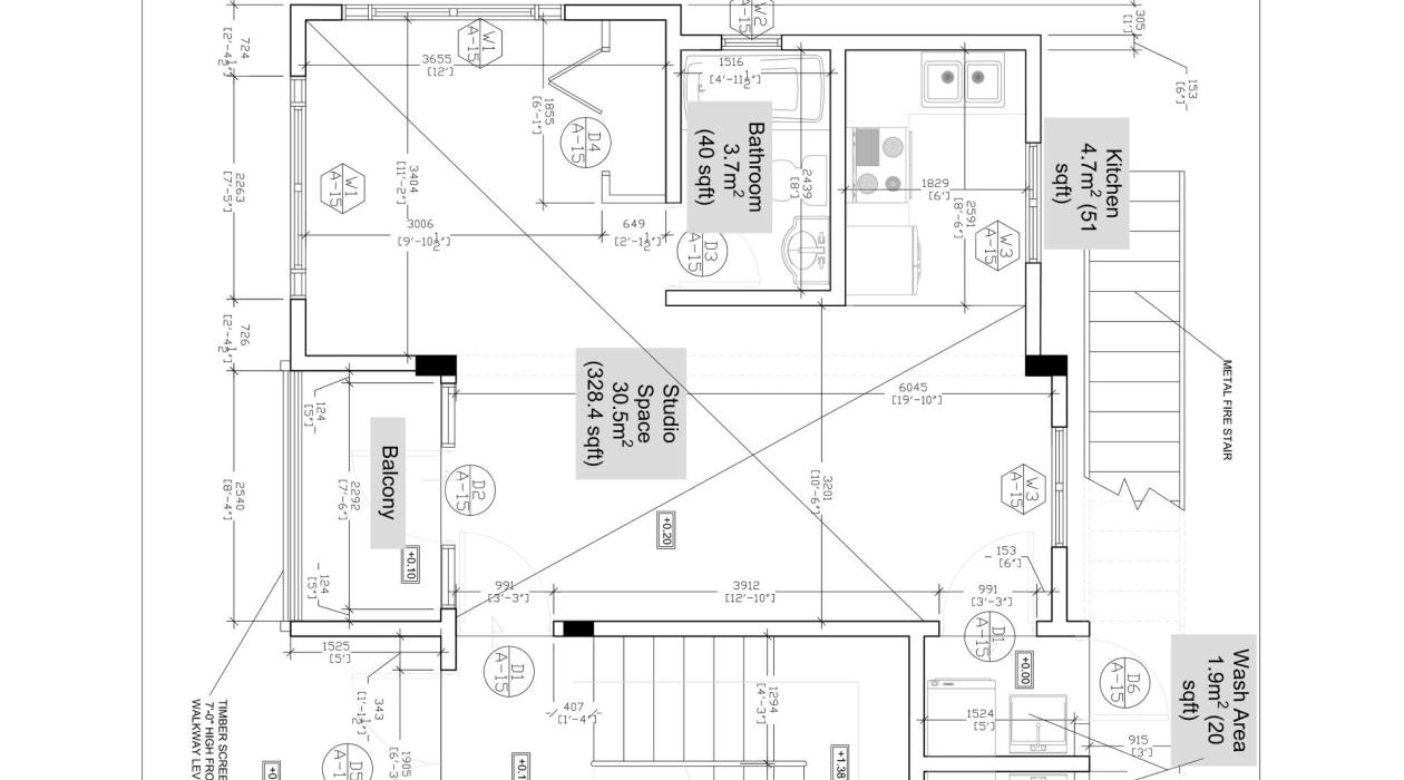
Howard Avenue
Between Tuesday, September 23, 2025 to Thursday, September 25, 2025 the National Housing Trust will be inviting applications for Two-hundred & forty-five (245) Studio Apartments in the Howard Avenue Housing Development.
Sited on 1.8 acres, the Howard Avenue Housing Development, is located at 10-16 Howard Avenue, Kingston 11, St. Andrew. It can be accessed from the main thoroughfares of Waltham Park Road (east) & Spanish Town Road (west) and runs parallel to Hagley Park Road. Howard Avenue is approximately 5.5km and 8km, respectively, from the commercial centres of Half Way-Tree and Down Town, Kingston.
The development will contain paved roadway, storm water drains, potable water distribution system (connected to NWC), parking area, connection to NWC’s centralized sewage collection system, electrical distribution system and perimeter fence with security guard house. Additionally, the complex will include the following features: clubhouse, roof gazebo, drying yard, children’s play area and rood amenity area.
NHT LOAN AND ADDITIONAL FINANCING
The NHT will lend a single applicant up to the full purchase price of a solution, within the Howard Avenue Housing Development, subject to eligibility and affordability. If two persons co-apply for a solution, together they can borrow up to the total cost of the solution, subject to eligibility and affordability. Under the First Home Programme, effective July 1, 2024, the NHT will develop one bedroom and studio apartment complexes in or around urban centres, such as the Howard Avenue Housing Development. These solutions will be sold to qualified NHT contributors with an optional ‘buy back’ clause. i.e. Beneficiaries will have the option to sell the unit back to the Trust, within an approved timeframe. (Conditions apply)
Successful applicants will be required to pay a closing cost of $3,500 for each unit.
WHO CAN APPLY
All qualified NHT contributors may apply. However, preference will be given to qualified applicants whose place of residence or employment is in the parishes of Kingston & St. Andrew in the first instance and to applicants whose place of residence or employment is in the adjoining parishes in the second instance.
HOW TO APPLY
NHT contributors applying for scheme benefits may do so by accessing the NHT’s website, www.nht.gov.jm. They will then be directed to the application form. Applicants and their co-applicants are advised to ensure they have their TRN and NIS cards as well as their employment history before beginning the application process. They will be required to input personal and employment details as well as select their choice of a benefit on the online form.
Applications will be accepted online between Tuesday, September 23, 2025 at 8a.m. to Thursday, September 25, 2025 at 8 p.m. Please note that no application will be accepted before or after these times and dates.
Review the official results of the Howard Avenue Application Intake
White Wing
An NHT scheme consisting of 112 solutions made up of Studios, One bedroom and Two bedroom units.
Results not available as yet.
Union Acres (Irwin Estates)
An NHT scheme consisting of 104 Two Bedroom units.
Results not available as yet.
Foreshore Estate
An NHT scheme consisting of 170 solutions made up of one bedroom quad and duplex quad.
Results not available as yet.
Silver Sun Estate (Interim)
An NHT scheme consisting of 165 Two Bedroom units.
Results not available as yet.
Friendship Oaks Phase 1
An NHT scheme consisting of 150 One Bedroom Units
Results not available as yet.
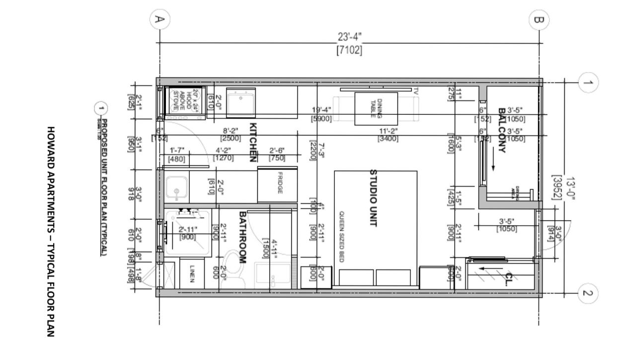
Vineyard Town
Between Tuesday, September 23, 2025 to Thursday, September 25, 2025 the National Housing Trust will be inviting applications for Fourteen (14) Studio Apartments in the Vineyard Town Housing Development.
Sited on .232 & .210 acres, the Vineyard Town Housing Development, is located at 2A Central Avenue & 7 Third Avenue, St. Andrew. The properties are located in the Eastern Kingston Community of Vineyard Town approximately 3km northeast of Downtown Kingston.
The development will contain boundary wall with restricted access, potable water distribution system, electrical distribution infrastructure and external lighting, storm water drainage system and central sewage collection & treatment system on each site. Additionally, the complex will include paved parking area and landscaped communal space for community and recreational facilities in keeping with the approved development standards.
NHT LOAN AND ADDITIONAL FINANCING
The NHT will lend a single applicant up to the full purchase price of a solution, within the Vineyard Town Housing Development, subject to eligibility and affordability.
If two persons co-apply for a solution, together they can borrow up to the total cost of the solution, subject to eligibility and affordability. Under the First Home Programme, effective July 1, 2024, the NHT will develop one bedroom and studio apartment complexes in or around urban centres, such as the Howard Avenue Housing Development. These solutions will be sold to qualified NHT contributors with an optional ‘buy back’ clause. i.e. Beneficiaries will have the option to sell the unit back to the Trust, within an approved timeframe. (Conditions apply)
Successful applicants will be required to pay a closing cost of $3,500 for each unit.
WHO CAN APPLY
All qualified NHT contributors may apply. However, preference will be given to qualified applicants whose place of residence or employment is in the parishes of Kingston & St. Andrew in the first instance and to applicants whose place of residence or employment is in the adjoining parishes in the second instance.
HOW TO APPLY
Applications will be accepted online between Tuesday, September 23, 2025 at 8a.m. to Thursday, September 25, 2025 at 8 p.m. Please note that no application will be accepted before or after these times and dates.
Review the official results of the Vineyard Town Application Intake
The Estuary Phase 2
An NHT scheme consisting of 401 solutions made up of one bedroom duplex units and detached one bedroom units.
Results not available as yet.
Hummingbird Meadows Phase 2
An NHT scheme consisting of 182 solutions made up of One Bedroom Units and Serviced Lots.
Results not available as yet.
Perth Phase 2
An NHT scheme consisting of 468 Two Bedroom Units.
Results not available as yet.
Pagination
- Previous page
- Page 2
- Next page